Ufficio in Via vicinale santa maria del pianto, Napoli (NA)

298.000 €

186 m²
Metratura
5
Locali
4
Bagni

Mappa

Descrizione

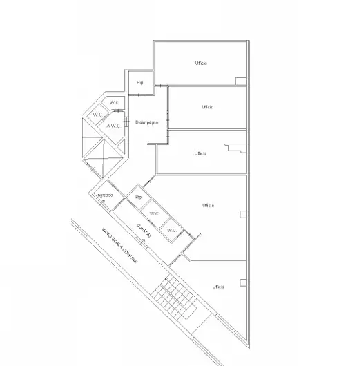
Il complesso dirigenziale denominato “Centro polifunzionale’’ si sviluppa a pochi passi da Via Nuova Poggioreale, precisamente in Via Vicinale Santa Maria Del Pianto collegata in modo strategico sia al centro che alla provincia di Napoli con mezzi pubblici, raccordo autostradale, tangenziale, strada Provinciale 162, nonché dalla strada statale 7 bis, arteria di collegamento con i paesi vesuviani di fondamentale importanza. Il complesso nasce per ospitare uffici pubblici e privati, strutture socio-sanitarie, istituti di credito e assicurativi ed uffici per studi professionali. La struttura è formata da edifici indipendenti con accessi controllati e custoditi h 24 ed ogni edificio è dotato di servizio portineria. Gabetti Franchising propone in vendita all’ interno della Torre 3 Ampia unità immobiliare di 186 mq, sita al piano ottavo, composta da: ingresso in disimpegno, corridoio, cinque ambienti adatti a più postazioni di lavoro, due ripostigli utilizzabili come archivi e quattro bagni di cui uno con antibagno. Ogni ambiente è dotato di molteplici punti luce che lo rendono molto luminoso grazie al piano alto e alla sua esposizione panoramica. La distribuzione interna degli spazi è ottimale in quanto offre la flessibilità necessaria per adattarsi alle esigenze specifiche di qualsiasi attività professionale. L'edificio in oggetto si presenta in ottimo stato manutentivo di gradevole estetica con facciata continua a vetri specchiati e vanta una serie di servizi che lo rendono un luogo ideale per condurre attività in modo efficiente come la presenza di quattro ascensori che permettono un accesso rapido e agevole ai piani. Ideale per chi desidera investire in una zona perfettamente servita ed in continuo sviluppo grazie alla realizzazione della nuova stazione Poggioreale della Linea 1 della Metro su via Nuova Poggioreale, di fronte all’ingresso del Cimitero Monumentale, nelle immediate vicinanze della linea Napoli-Baiano della Circumvesuviana con la quale costituirà un punto di interscambio. Il progetto dall’Architetto Mario Botta ha previsto il recupero e l’utilizzo della vecchia barriera doganale, trasformando l’emiciclo di Poggioreale preesistente in un porticato aperto al transito e ai pedoni; non unico progetto in quanto entro il 2026, a breve distanza dal Complesso, ovvero presso il Centro Direzionale di Napoli si svilupperà una nuova struttura, un palazzetto dello sport che ospiterà vari tipi di eventi sportivi indoor in particolare quelli relativi al basket, oltre ad accogliere anche spettacoli, concerti ed eventi culturali. Il progetto, comprende, tra l’altro, anche un parco urbano attrezzato di 44.000 mq. Questa soluzione rappresenta quindi un'ottima occasione per chi desidera svolgere la propria attività ma, al contempo, costituisce anche un'interessante opportunità di investimento per coloro che desiderano ottenere un reddito locativo. Non perdere quest’ opportunità, contattaci per organizzare una visita.

Caratteristiche

Superficie
186
Locali
5
Bagni
4
Piano
Ottavo
Citofono
Tipo dell'immobile
Ufficio
Codice annuncio
Cod. rif 3176986

Efficienza

Condizioni dell’immobile
Da ristrutturare

Costi

Prezzo
298.000 €
Stato occupazione
Libero

Calcola mutuo

Comprare casa è un passo importante

Comprare casa è un passo importante

Scopri, rispondendo ad alcune domande, la stima della rata di mutuo: facile chiaro e senza pensieri.
Vuoi sapere quanto vale il tuo immobile?

Vuoi sapere quanto vale il tuo immobile?

Scopri il valore di casa tua in pochi passaggi, gratuitamente e senza impegno. Ti guidiamo con semplicità nella richiesta di una stima affidabile.

Agenzia

Gabetti Napoli Corso Garibaldi

G.F. Immobiliare Srls

Corso Giuseppe Garibaldi, 235 - 80141 Napoli

Vai alla scheda dell'agenzia

Calcola mutuo

Comprare casa è un passo importante

Comprare casa è un passo importante

Scopri, rispondendo ad alcune domande, la stima della rata di mutuo: facile chiaro e senza pensieri.
Vuoi sapere quanto vale il tuo immobile?

Vuoi sapere quanto vale il tuo immobile?

Scopri il valore di casa tua in pochi passaggi, gratuitamente e senza impegno. Ti guidiamo con semplicità nella richiesta di una stima affidabile.