Soluzioni Immobiliari di Niciarelli Egidio
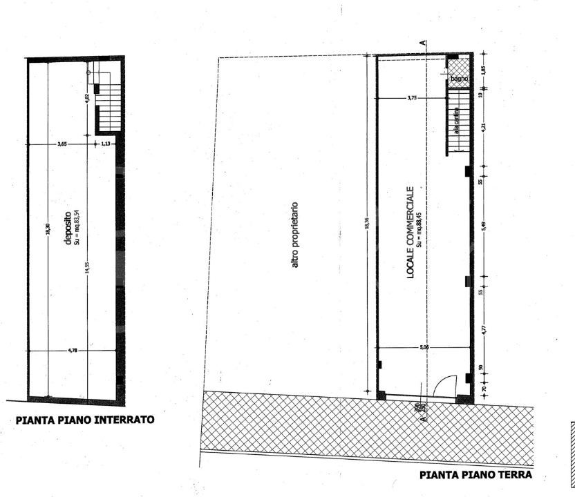
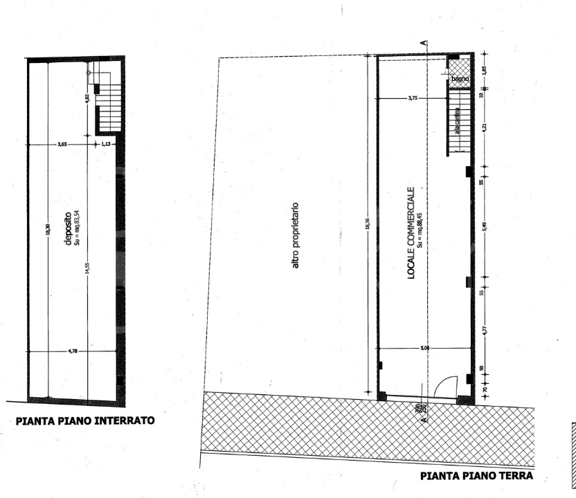
Negozio in VIA DELLE CONCE 7, Tricase (LE)
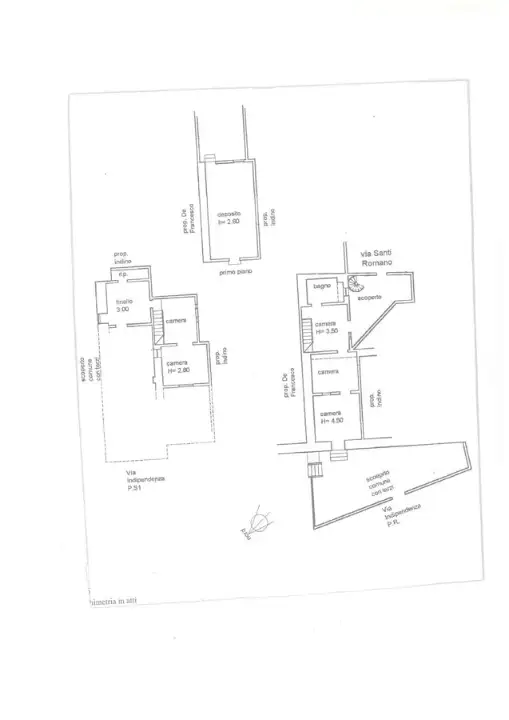
Casa Indipendente in VIA G. CARDANO 0, Tricase (LE)
Casa Indipendente in VIA VICO MARGIOTTA 4-5, Tiggiano (LE)
Casa Indipendente in SS275 0, Tricase (LE)
Magazzino in STRADA STATALE 275 0, Alessano (LE)
Casa Indipendente in VIA G. MARCONI 38, Tricase (LE)
Villa in VIA SAN GIUSEPPE 0, Castrignano del Capo (LE)
Casa Indipendente in VIA G. MARCONI 78-81, Specchia (LE)
Social