Studio Raffaello di Basto Rocco D.I.
Appartamento in Via Valprato 56/4, Torino (TO)
Appartamento in Via Genova 91/34, Torino (TO)
Appartamento in Via Sibelli Bogliolo 6, Alassio (SV)
Magazzino in CORSO FRANCIA 353, Torino (TO)
Box in corso Peschiera 300, Torino (TO)
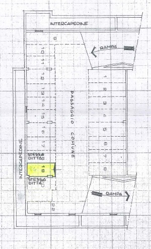
Box in Corso Francia 353, Torino (TO)
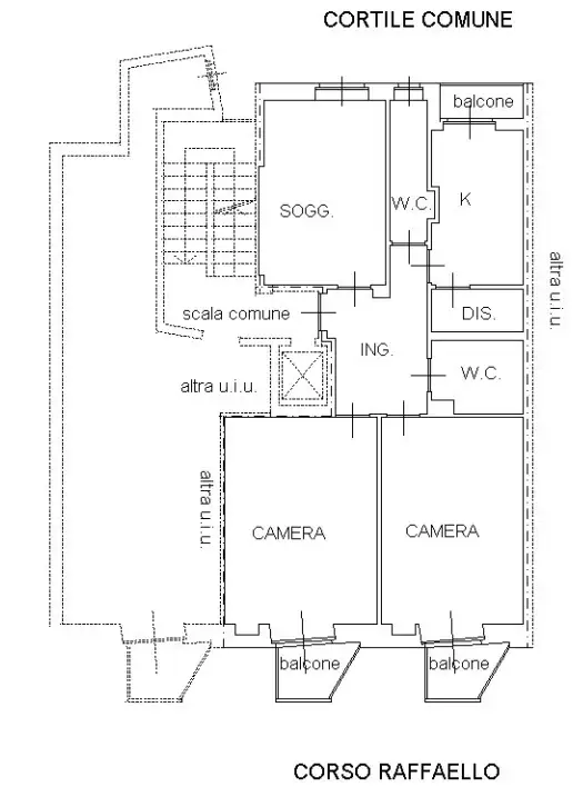
Appartamento in Corso Raffaello 21 bis, Torino (TO)
Box in Via Monti 30, Torino (TO)
Social