5 Immobiliare Srl
Farisco Roberto
Titolare
Appartamento in Via Aldo e Carlo Bettini 5, Sasso Marconi (BO)
Appartamento in Via Pila 9, Sasso Marconi (BO)
Appartamento in Via Cartiera 47, Sasso Marconi (BO)
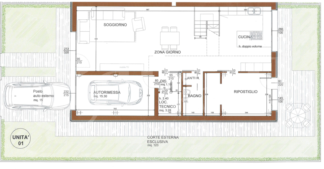
Casa Indipendente in via Campescolo 2, Sasso Marconi (BO)
Villa in via Montelungo 30, Pianoro (BO)
Villa in Via Pieralli 12, Castiglione dei Pepoli (BO)
Appartamento in Via Maranina 20, Sasso Marconi (BO)
Casa Indipendente in Via Piana Cinelli 154/L, Grizzana Morandi (BO)