I Laghi s.a.s. di Caggiano Rita Tiziana & C.
Appartamento in Via Reti 15 , Laino (CO)
Appartamento in Via Monte Tellero 64, Ponna (CO)
Casa Indipendente in Via Lucio Maria Travella 1010, Porlezza (CO)
Casa Indipendente in Via San Giorgio 13, Alta Valle Intelvi (CO)
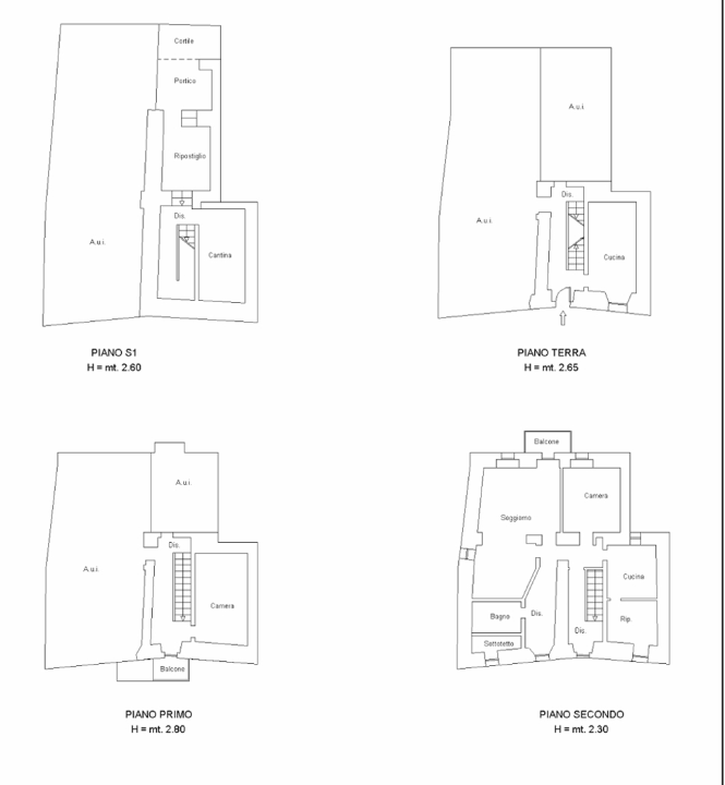
Casa Indipendente in Piazza Fontana 1, Ponna (CO)
Appartamento in Via Castello 7, Centro Valle Intelvi (CO)
Appartamento in Via Santi Nazaro e Celso 14, Alta Valle Intelvi (CO)
Appartamento in Via Santi Nazario e Celso 19, Alta Valle Intelvi (CO)
Social