Agenzia Immobiliare GIENNE S.N.C. di Guarnieri Claudio & C.
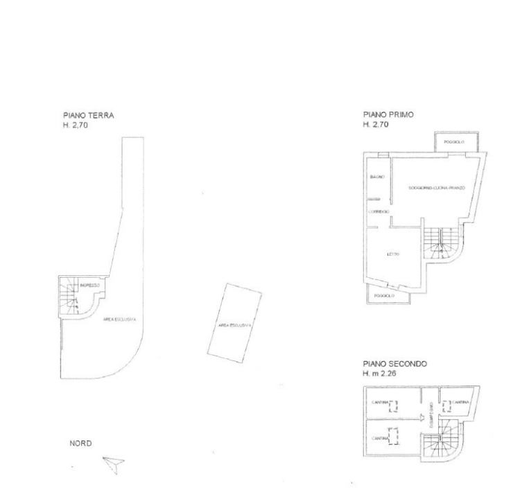
Casa Indipendente in COSTA DI ROVIGO - via Marconi 14, Costa di Rovigo (RO)
Appartamento in VILLADOSE Via A. Gramsci 0, Villadose (RO)
Casa Indipendente in VILLANOVA MARCHESANA Via XXV Aprile 2, Villanova Marchesana (RO)
Villa in VILLADOSE Via Liona 0, Villadose (RO)
Appartamento in VILLANOVA MARCHESANA - VIA ROMA 40, Villanova Marchesana (RO)
Casa Indipendente in VILLADOSE Viale G. Matteotti 0, Villadose (RO)
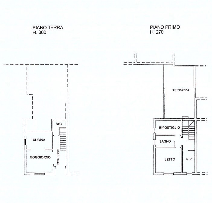
Casa Indipendente in COSTA DI ROVIGO - via Marconi 18, Costa di Rovigo (RO)
Complesso in VILLADOSE Via A. Rizzo 0, Villadose (RO)
Social