Immobiliare Roma Nord Srl
Appartamento in Via Di Pietralata 148, Roma (RM)
Appartamento in Via Madonna Di Campiglio 23-25, Roma (RM)
Appartamento in Via Cortina D'ampezzo 99, Roma (RM)
Appartamento in Viale Tiziano 19, Roma (RM)
Villa in Via Capo D'Orlando snc, Fregene (RM)
Villa in Via Belvedere SNC, Monte Argentario (GR)
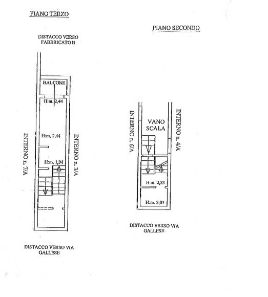
Appartamento in Via Gallese 28, Roma (RM)
Appartamento in Via Guido Reni 35, Roma (RM)