Paolino Pierpaola D.I.
Appartamento in Via Brancati 145, Pachino (SR)
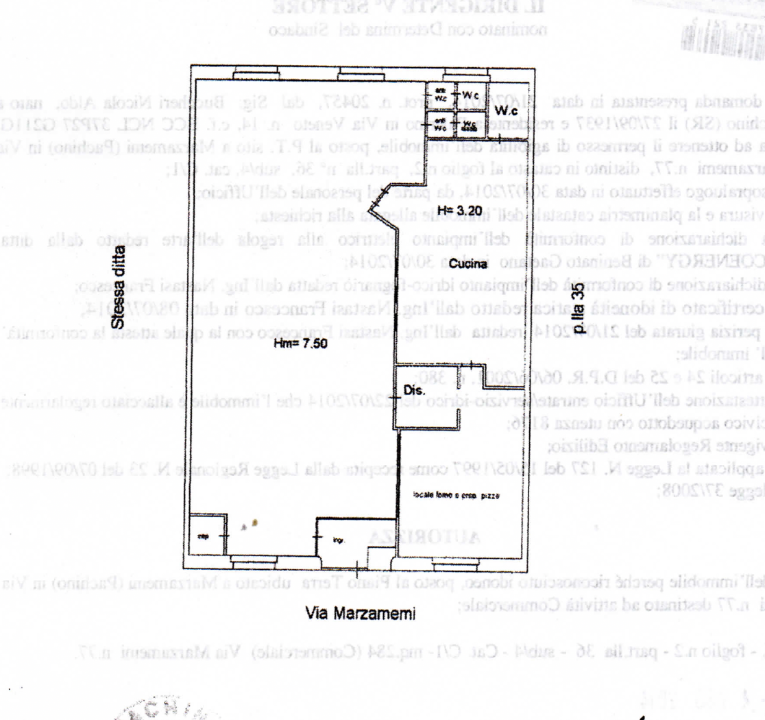
Villa in Via Maucini ., Portopalo di Capo Passero (SR)
Casa Indipendente in Via Mascagni 6, Pachino (SR)
Appartamento in Via Durando 87, Pachino (SR)
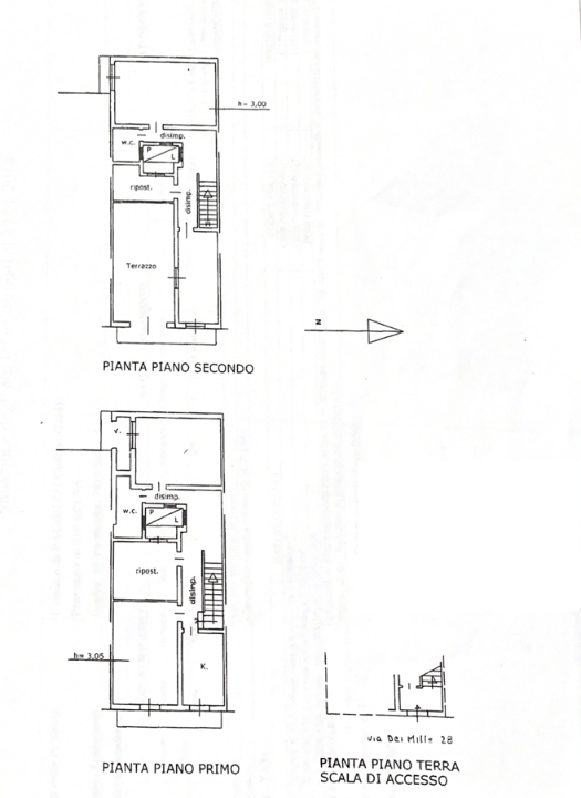
Casa Indipendente in Via Dei Mille 28, Pachino (SR)
Casa Indipendente in contrada maccari snc ., Noto (SR)
Casa Indipendente in Via Nunzio Costa 150, Pachino (SR)
Palazzina in Vittorio Emanuele 83, Palazzolo Acreide (SR)
Social