F.L. Srls
Luca Spanu
Titolare
Francesco Orrù
Nicola Poddi
Consulente Senior
Christian Felice Sulis
Silvia Collu
Federica Piano
Consulente Junior
Mattia Scanu
Stefania Porru
Assistente
Appartamento in VIA CAMPANIA 164, Oristano (OR)
Negozio in via marceddi 32, Terralba (OR)
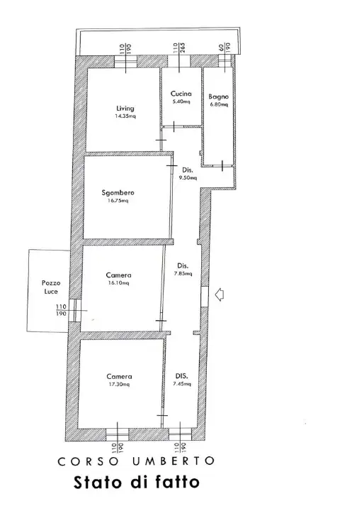
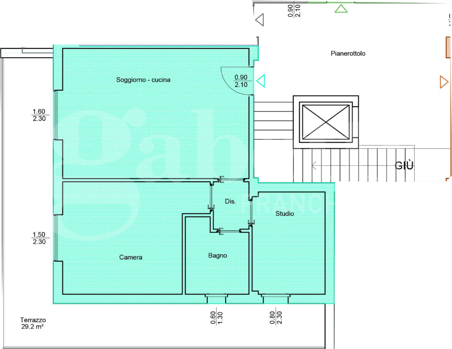
Appartamento in CORSO UMBERTO 62, Oristano (OR)
Appartamento in VIA NUORO 13, Oristano (OR)
Casa Indipendente in VIA OTHOCA 18, Oristano (OR)
Ufficio in VIA MICHELE PIRA 10, Oristano (OR)
Appartamento in Via Sardegna 29, Oristano (OR)
Negozio in CORSO UMBERTO I 14, Oristano (OR)
Social