Immobiliare Bugatti Srl
Ambra Thevenet
Assistente
Capannone in Via De Amicis 8, Rozzano (MI)
Appartamento in Via Ulisse Dini , Milano (MI)
Capannone in Via Rosa Luxemburg 2, Locate di Triulzi (MI)
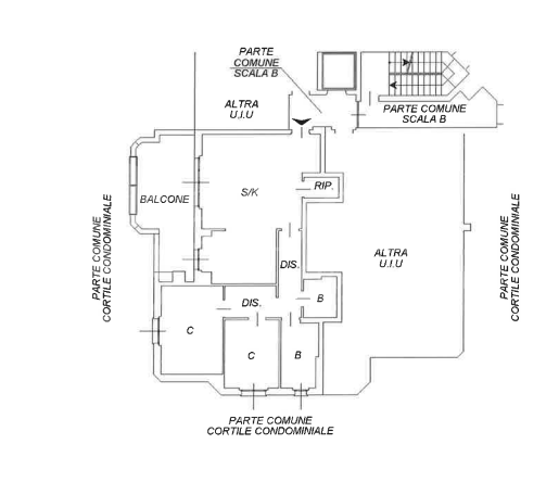
Appartamento in Via Nicola Romeo , Milano (MI)
Appartamento in Via Carlo Marx , Milano (MI)
Appartamento in Via Neera , Milano (MI)
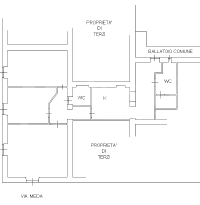
Appartamento in Via Giuseppe Meda, Milano (MI)
Appartamento in Via Umberto I, San Pietro Mosezzo (NO)
Social